New Townhomes for Sale in Greenhills, OH
This condominium townhome development features modern-style homes with urban facades. The homes have clean-lined exteriors with large windows and black trim. Find open living spaces and kitchens, dining area as well as two bedrooms and a study on two levels. A rear patio extends living outside with a treed vista view. The town homes offer brand-name appliances, wood cabinets as well as granite and marble finishes. A stylish, electric fireplace in the living room is located along a textured accent wall. This development is located in Greenhills, a national historic landmark community created in the 1930s. This well-designed community features pedestrian paths, a surrounding greenbelt, and streets designed for limited traffic patterns. Scenic Winton Woods surrounds Greenhills and offers numerous outdoor activities.
Development Plat

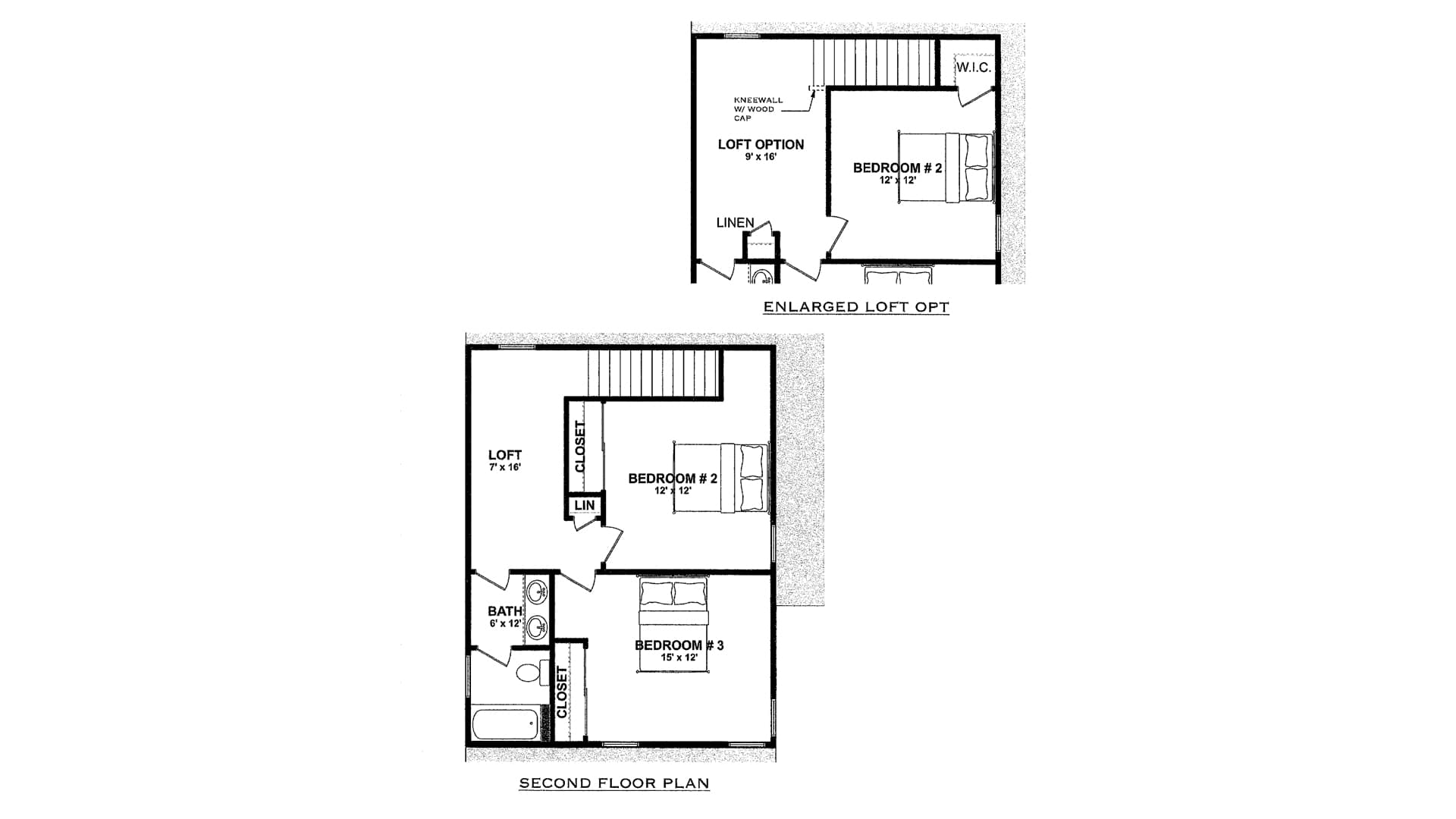
Floorplans


Elevations

School Information
Public School District
This development is located in Winton Woods City Schools.
Nearby Private Schools
Bethany School
John Paul II Catholic School
Central Montessori Academy
Cincinnati Christian Schools
Explore Local Lifestyle
Cincinnati, OH
Arts & Entertainment
The Carnegie - Constructed in 1904 and on the National Register of Historic Places the Carnegie inspires creativity for all. See professional theatre presentations, concerts and art exhibits at the largest and only multidisciplinary arts venue in Northern Kentucky, with The Carnegie Galleries, the Eva G. Farris Education Center and the Otto M. Budig Theatre housed together under its landmark dome.
Cincinnati Ballet - For more than 40 years the Cincinnati Ballet has entertained and enriched the culture of our community.
Cincinnati Arts Association - The CAA is a non-profit organization founded in 1992 which oversees programming and management of the Aronoff Center for the Arts and Music Hall.
Cincinnati Black Theatre Company - A not-for-profit organization that includes: professional leaders, educators, and visual artists from various racial and cultural backgrounds. They are committed to providing positive cultural interaction within our city.
Cincinnati Music Theatre - Over the last 45 years and counting the Cincinnati Music Theatre has strived to produce and encourage outstanding non-professional musical theater in and with our community.
Cincinnati Opera - On June 27, 1920 Cincinnati’s Opera began its reign as the second oldest opera company in the U.S. with a sold out performance.
Cincinnati Playhouse in the Park - The Playhouse is a non-profit theatre that is dedicated to presenting great theatre as well as making theatre affordable and accessible to everyone in our community.
The Children's Theatre - Sponsored by Sibcy Cline, Inc., The Cincinnati Children’s Theatre has been introducing children to the magic of theatre for over 80 years.
Cincinnati Pops Orchestra - Since its founding in 1977 the world-renowned Cincinnati Pops Orchestra performs in Cincinnati’s Music Hall.
Cincinnati Shakespeare Festival - The Cincinnati Shakespeare Company is a resident ensemble theatre that brings Shakespeare and the Classics to life for audiences of all ages.
Cincinnati Symphony Orchestra - The Cincinnati Symphony Orchestra was founded in 1895. It is the fifth oldest orchestra in the United States representing the evolution of 200 years of musical tradition in the Queen City.
Contemporary Dance Theater - Since the theater’s creation in 1972 it has been connecting the community by moving bodies and souls with diverse and socially relevant contemporary dance.
Ensemble Theatre of Cincinnati - The Ensemble Theatre of Cincinnati is home to Regional, World and Off-Broadway premiere productions. They are the first theater to present plays as they were still running on Broadway.
Fifth Third Bank Broadway in Cincinnati - As a division of Broadway Across America they are committed to educating audiences of all ages with the magic of live theatre.
University of Cincinnati College - Conservatory of Music - As the largest source of performing arts events in the state the conservatory is an educational institution for the performing arts within a comprehensive public university.
Riverbend Music Center - Visit the premier concert venue of Greater Cincinnati. Nestled on prime real estate on the city’s eastern outskirts along the Ohio River you will enjoy listening to a variety of musical talents while taking in the scenic views.
Ohio Renaissance Festival - Experience life during the Renaissance period by enjoying games, shows and shopping in a re-created 16th Century English village.
Performance Gallery - Specializing in theater that “appeals to unconventional or nontraditional interests” the Performance Gallery produces challenging works of theatre that seldom find a home on mainstream stages.
Warsaw Incline Theater - The 229-seat live-performance theater is located in East Price Hills Incline District. Year-round performances are offered with many shows enjoyed by sell-out crowds.
Sports & Recreation
Sports
Cincinnati is home to the excitement of the oldest professional baseball team (Cincinnati Reds), an NFL football team (Cincinnati Bengals), a professional hockey team (Cyclones), a Major League Soccer team (FC Cincinnati), the Kentucky Speedway, horseracing, the Tennis Masters Series Cincinnati, golf (LPGA and Senior PGA) and Division I athletics from area colleges. Sports teams enjoy the support of loyal Cincinnatians, evident in the building of two professional stadiums, Paul Brown Stadium and the Great American Ballpark.
Cincinnati Bengals - Visit Paul Brown Stadium to catch some NFL excitement with the Cincinnati Bengals.
Cincinnati Reds - Enjoy the great American pastime with the first professional baseball team.
Turfway Race Track - Whether you’re a veteran racing fan, casual fan or new to horseracing, Turfway Park puts you up close for all the action.
Belterra Park - Stop by and enjoy live thoroughbred racing from April through September and simulcast racing year round.
Kentucky Speedway - Located approximately halfway between Cincinnati and Louisville in Sparta KY. The Kentucky Speedway delivers a dose of NASCAR speed and adrenaline while hosting Busch series races in addition to their diverse racing schedule.
Flying Pig Marathon - Come and participate in the country’s third largest first-time marathon. Join athletes of all running abilities as they find their personal reward.
US Open Tennis Masters Series Cincinnati - Professional tennis visits Cincinnati every summer during the Western & Southern Financial Group Masters and Women’s Open tournaments.
Florence Y'alls - Come out, join in the fun and root for Greater Cincinnati's Minor League Professional Baseball Team, the Florence Y'alls, as they play against teams from Kentucky, Ohio, Indiana, Illinois, Michigan, Missouri and Pennsylvania. They are a member of the Independent Frontier League.
FC Cincinnati - Cincinnati is very proud to host a Major League Soccer (MLS) team, FC Cincinnati. Games are well attended by passionate fans wearing their blue and orange. The club plays at a world-class soccer stadium called TQL Stadium.
Parks and Recreation
Cincinnati Parks - Over 5,000 acres have been designated to the city’s 100 parks and green spaces making our parks some of the best in the nation.
Hamilton County Park District - Our Hamilton County parks are dedicated to the preservation and protection of all natural resources by providing outdoor recreation and education to create a better quality of life for present and future generations.
Ohio State Parks - Visit any of Ohio’s 74 state parks for an outdoor recreational experience that will exceed all expectations.
For More Information about Life in the Greater Cincinnati Region
www.redicincinnati.com - Cincinnati is home to 9 Fortune 500 firms, and more than 300 foreign-owned firms which provides our community with a strong foundation for thriving careers and an outstanding quality of life.
www.cincinnatiusa.com - Things to do and places to go in Cincinnati
www.downtowncincinnati.com - A list of things to do in downtown Cincinnati
Museums & Attractions
Greater Cincinnati/Northern Kentucky/Southeast Indiana region is filled with boundless choices for museums and attractions for endless enjoyment and excitement! A museum-lover has the new Contemporary Art Museum, the spectacularly renovated art museum, and Museum Center to explore. Other attractions include the world-renowned Cincinnati Zoo and Botanical Gardens and Newport Aquarium. For summer thrill-seekers, the region has Kings Island and the Beach.
Cincinnati Art Museum - Visits to scenic Eden Park are not complete unless you take time to enjoy exhibitions, programs and activities at the Art Museum. There’s no excuse not to visit since admission is always FREE.
Contemporary Art Museum - As one of the oldest museums of contemporary art in the United States the Contemporary Arts Center has served the city by providing a forum for progressive art and ideas.
Taft Museum of Art - Built in 1820, the Taft Museum is a National Historic Landmark and is known as one of the finest small art museums in America.
Cincinnati Museum Center - One gorgeous, historically important building. Inside, four amazing places to enjoy and explore. Cincinnati Museum Center at Union Terminal offers endless fun and learning.
National Underground Railroad Freedom Center - Learn the stories of freedom’s past and present heroes while visiting the museum’s three buildings that represent the cornerstones of freedom- courage, cooperation and perseverance.
Heritage Village Museum - Located in Sharon Woods Park, the Heritage Village is a recreated 1800’s community featuring a dozen historic buildings that were saved from destruction and moved to their present location. You will experience the rural simplicity of a small town life as it was during Ohio in the 1800’s.
Cincinnati Zoo and Botanical Gardens - Come and see the world famous and #1 rated family attraction in Cincinnati. Opened in 1875, it is the nation’s second oldest zoo and a national historic landmark.
Newport Aquarium - Open 365 days a year, the Newport Aquarium was ranked the #1 aquarium in the Midwest by the Zagat’s U.S. Family Travel Guide in 2004.
Krohn Conservatory - Visit a nationally recognized showcase of over 3,500 plant species from across the world. The conservatory is open year round with free admission.
Newport on the Levee - Enjoy open spaces, unique shopping, international dining, catch a movie or comedy show and much more at this leading local tourist attraction.
Perfect North Slopes - Skiing in Cincinnati? That’s right, but Perfect North Slopes is actually located about 30 minutes away in Lawrenceburg Indiana, where you can hit the slopes skiing, snowboarding or snow tubing.
Kings Island - From Soak City to Planet Snoopy, there is something for everyone to enjoy. Kings Island has 14 roller coasters and numerous rides and attractions that will entertain the entire family.
Sunlite Pool at Coney Island - Swim and sunbathe at the world’s largest re-circulating swimming pool.
Business & Media
Business Organizations in Cincinnati
Clermont County Chamber of Commerce - Promoting local and regional business through: Entrepreneurship, Retention and expansion efforts, business attraction, advocacy of interests, counseling and analysis, regional partnerships, networking and cost savings.
Greater Cincinnati Chamber of Commerce - The Cincinnati USA Regional Chamber is the nation's fifth largest chamber and twice has been named Chamber of the Year.
Greater Cincinnati Convention and Visitors Bureau - Whether you are looking for business or leisure the GCCVB gives you the best that Greater Cincinnati has to offer.
Northern Kentucky Chamber of Commerce - The Northern Kentucky Chamber of Commerce is dedicated to developing strong businesses and lively economy in order to improve quality of life for all in the area.
Greater Cincinnati and Northern Kentucky African American Chamber of Commerce - Since established in 1996 the AACC has been a strong advocate of African American businesses in the Greater Cincinnati and Northern Kentucky area.
Greater Cincinnati Hispanic Chamber of Commerce - The Hispanic Chamber of Commerce’s goal is to promote the creation as well as the continued growth of Hispanic/Latino business in the Greater Cincinnati area.
Northern Kentucky Convention and Visitors Bureau (NKCVB) - Plan your next business meeting with the best of the South, on the edge of the North. We have great places to meet, stay, play, eat and learn.
Newspapers in Cincinnati
The Cincinnati Enquirer - Find everything from breaking news to local events.
The Community Press - Keep up with local news and activities in your neighborhood with Cincinnati’s Community Press.
Radio & TV in Cincinnati
WGUC - WGUC broadcasts the finest in classical music programming and is the leading provider of arts information for Greater Cincinnati.
WVXU - WVXU is the city’s primary source of public affairs, information programming and a home for unique entertainment on the radio.
WLWT - TV - Channel 5 WLWT is your number one source for breaking news, local stories, weather traffic and more.
WCPO - TV - Broadcasting daily since 1949, Channel 9 WCPO is Cincinnati’s home for news, traffic, weather, sports and entertainment.
WKRC - TV - Channel 12 WKRC is committed to providing its viewers with the most up-to-date news, information, weather and entertainment and has been doing so for over 50 years.
The Weather Channel -(Cincinnati) Provides Greater Cincinnati with up to the minute weather reports and severe weather updates.
Kelly Doran-Wayman
The Oaks at Historic Greenhills is listed by Kelly Doran-Wayman with SIBCY CLINE REALTORS®
Call 513-652-3889 for more information.



